19.07.2010

 

Der Bauantrag ist fertig. Das Haus wird genau wie von uns in wochenlanger Arbeit geplant, gebaut. Wir bauen ein Zweifamilienhaus, die beiden Wohnung gehen jeweils über 2 Stockwerke. Die von uns entworfenen Pläne konnten mit nur geringen Abweichungen vollständig realisiert werden.


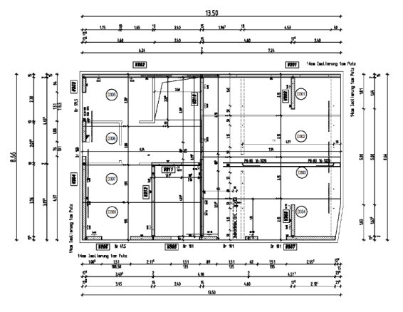
Querschnitt des Hauses

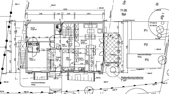
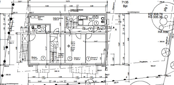
Wohnfläche Wohnung 1 (UG + EG) = 143 m²
+ Zimmer mit Bad UG = 25 m²


Untergeschoss (Wohnung 1)


Erdgeschoss (Wohnung 1)

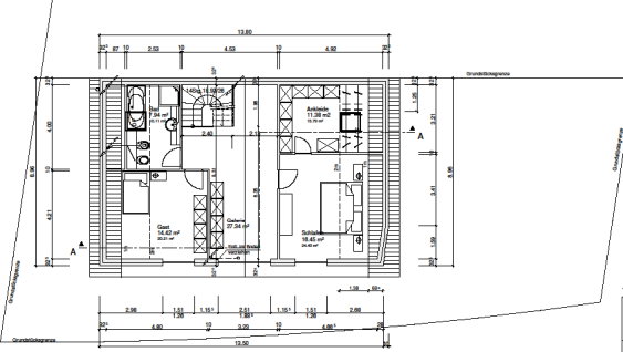
Wohnfläche Wohnung 2 (OG + DG) = 160 m²


Obergeschoss (Wohnung 2)


Dachgeschoss (Wohnung 2)


Unser Entwurf


Das fertige Haus

 

20.07.2010 Der Bauantrag wurde eingereicht